Trilocale in vendita

Artena, Via Valmontone
€ 67.000
3 locali 3 locali
75 Mq 75 Mq
1 bagno 1 bagno

Trilocale in vendita

Artena, Via Valmontone

Descrizione annuncio

ARTENA - VIA VALMONTONE

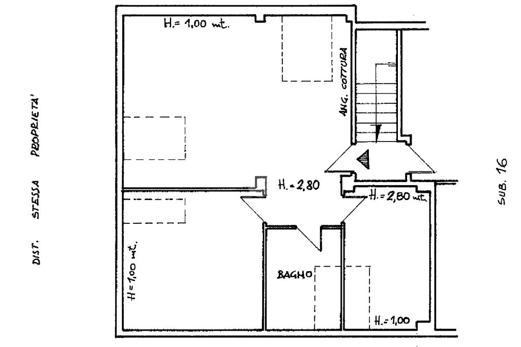
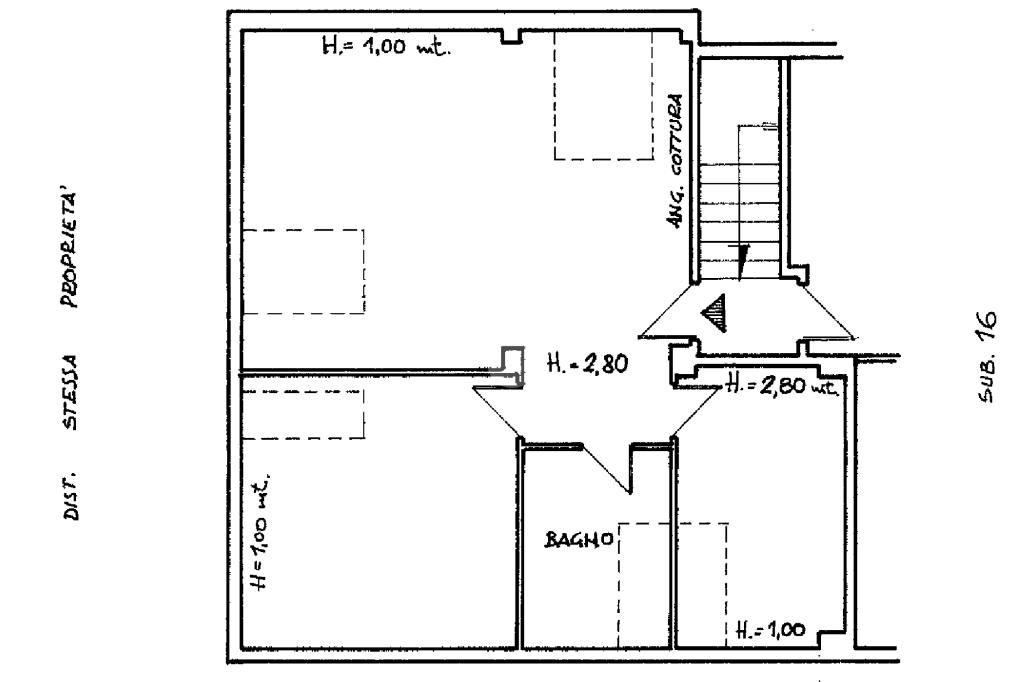
In posizione centrale, a pochi passi dai principali servizi, proponiamo in vendita appartamento mansardato posto al terzo piano di una palazzina priva di ascensore.

La soluzione, caratterizzata da una buona luminosità grazie alla doppia esposizione e alle finestre a tetto, si compone di soggiorno con angolo cottura, due camere da letto e bagno. Gli ambienti, ben distribuiti, risultano funzionali e adatti sia ad uso residenziale che come forma di investimento.

La posizione strategica, con l’estrema vicinanza a supermercati, scuole, attività commerciali e mezzi pubblici, rende l’immobile particolarmente interessante per chi desidera vivere il centro del paese senza rinunciare alla comodità dei servizi sotto casa.

Ideale come uso investimento, l’appartamento si presta ad essere locato con facilità, garantendo una buona rendita grazie alla centralità e alla tipologia sempre richiesta.

Soluzione adatta anche a giovani coppie o a chi è alla ricerca di un contesto riservato ma ben collegato.

Per ulteriori informazioni e/o prendere un appuntamento, contattaci al : 06.49.77.19.49 - 366.87.32.178

Con gli stessi recapiti telefonici puoi richiedere una valutazione completamente gratuita e senza impegno del tuo immobile.

Mostra tutto

Nelle vicinanze

Trasporto pubblico Trasporto pubblico
Valmontone
Valmontone
3,0 Km
Artena Campo Sportivo
Artena Campo Sportivo
230 m
via G.Marconi
via G.Marconi
450 m
Scuole Scuole
Scuole
330 m
I.T.C. Pacle
2,2 Km
Cardinale Oreste Giorgi
2,3 Km
Scuola materna Villaggio Rinascita
2,4 Km
Asilo Villaggio Rinascita
2,4 Km
Farmacia Farmacia
Farmacia Comunale
360 m
Farmacia
1,5 Km
Ospedali Ospedali
Valmontone Hospital
2,1 Km
Supermercati Supermercati
Carrefour Market
90 m
EuroSpin
2,3 Km
Negozi Negozi
Negozi
1,3 Km
Cianni
2,1 Km
Antico forno a legna
3,0 Km
Ristoranti Ristoranti
Il Fortino
230 m
La Valletta
850 m
La Vecchia Stazione
920 m
Trattoria Koala
970 m
Acquisto
1,0 Km
Mostra tutto

Caratteristiche

Rif.:
61181952
Piano:
3 di 3 (ultimo Piano)
Camere da letto:
2
Arredamento:
Assente
Condizionamento:
Assente
Ascensore:
No
Mostra tutto
Prezzo Prezzo
€ 67.000
Rata mutuo Rata mutuo
€ 318 / mese
Proponi il tuo prezzoProponi il tuo prezzo

Classe Energetica

D
D
D
D
D
D
D
D
D
EP invernale del fabbricato:
EP estiva del fabbricato:
Anno di costruzione:
1996
Riscaldamento:
Autonomo
Tipo impianto:
A radiatori
Tipo alimentazione:
Metano

Ti interessa visionare l'immobile?

Fissa un appuntamento  Fissa un appuntamento

Richiedi informazioni

Clicca su Leggi per aprire l'informativa
* Questi campi sono obbligatori

Calcola il tuo mutuo

Semplice e senza impegno
Anticipo

( % )
Mutuo

( % )

pochi semplici passi

inserisci i tuoi dati
Questionario completato
Grazie per aver richiesto un appuntamento senza impegno con un nostro Consulente del Credito e Assicurativo.

Hai inserito correttamente tutti i dati necessari e a breve riceverai una e-mail con un link da convalidare per inviare i tuoi dati.
Affiliato
Punto Mediazioni Srlu
Via Alessandro Fleming, 43/45 00031 Artena (RM)
Via Alessandro Fleming, 43/45 00031 Artena (RM)
Zona: Artena
Mostra su mappa
Orari: 8:30 - 13:00 / 15:30 - 19:30
Affiliato
Punto Mediazioni Srlu
Via Alessandro Fleming, 43/45 00031 Artena (RM)

2026 Tecnocasa Franchising S.p.A. - P. IVA 08365160152 - Via Monte Bianco 60/A 20089 Rozzano (MI). Ogni agenzia ha un proprio titolare ed è autonoma. Privacy policy | Policy utilizzo | Cookie policy